Mechanical Seals

Mechanical seals are leakage control devices, which are found on rotating equipment such as pumps and mixers to prevent the leakage of liquids and gases from escaping into the environment.

American Petroleum Institute released API 682 as guidance for users.

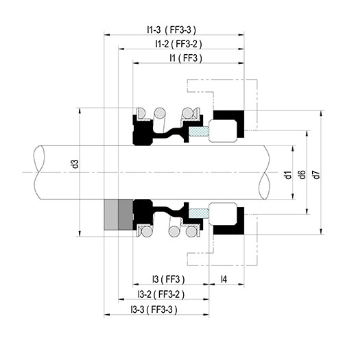
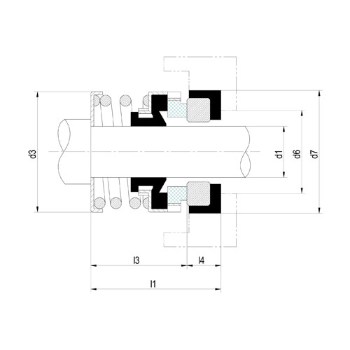
A mechanical seal consists of two (2) basic components. One component is stationary and the other rotates against it to achieve a seal. There are many types of mechanical seal, ranging from simple single spring designs to considerably more complex cartridge seal types. The design (Cartridge Seal & Non Cartridge Seal), arrangement (Single Seal, Dual Seal Pressurized & Dual Seal Un-pressurized) and materials of construction are essentially determined by the pressure, temperature, speed of rotation and product being sealed (the product media).

MECHANICAL SEAL TYPES

No mechanical seal can handle all application, there are some designs available for the mechanical seal configuration.

  • Pusher Seals & Non-pusher Seals
  • Balanced & Un-balanced Seals
  • Cartridge & Non Cartridge Seals

Pusher Seal consist of secondary seals that move axially along a shaft or sleeve to maintain contact at the seal faces, to accommodate wear and to assist in the absorption of shaft misalignment.

Non Pusher Seals does not have a secondary seal that must move along the shaft or sleeve to maintain seal face contact. In a non-pusher seal the secondary seal is in a static state at all times. A secondary sealing member is not required to make up the travel as the rotary and stationary seal faces wear. Primary seal face wear is typically accommodated by welded metal or elastomeric bellows which move to assist in the compression of the rotary to stationary seal faces.

CARTRIDGE SEALS have the mechanical seal pre-mounted on a sleeve (including the gland). They fit directly over the shaft or shaft sleeve, and are available in single, double, and tandem configurations. Best of class pump users give strong consideration to the use of cartridge seals.

PT. Tri Andalan Servindo © 2021. All Rights Reserved